Alquiler de naves industriales en Madrid | BGM Naves Industriales

GETAFE, MADRID

12.388,00 €
Tipo de propiedad Nave industrial
Tipo de contrato Alquiler
Superficie Total 3.069,00 m2
Uso pemitido Logístico
Certificado energético En trámite

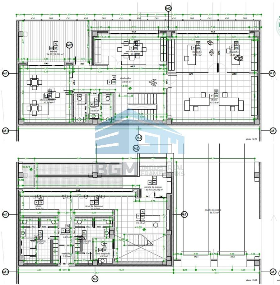
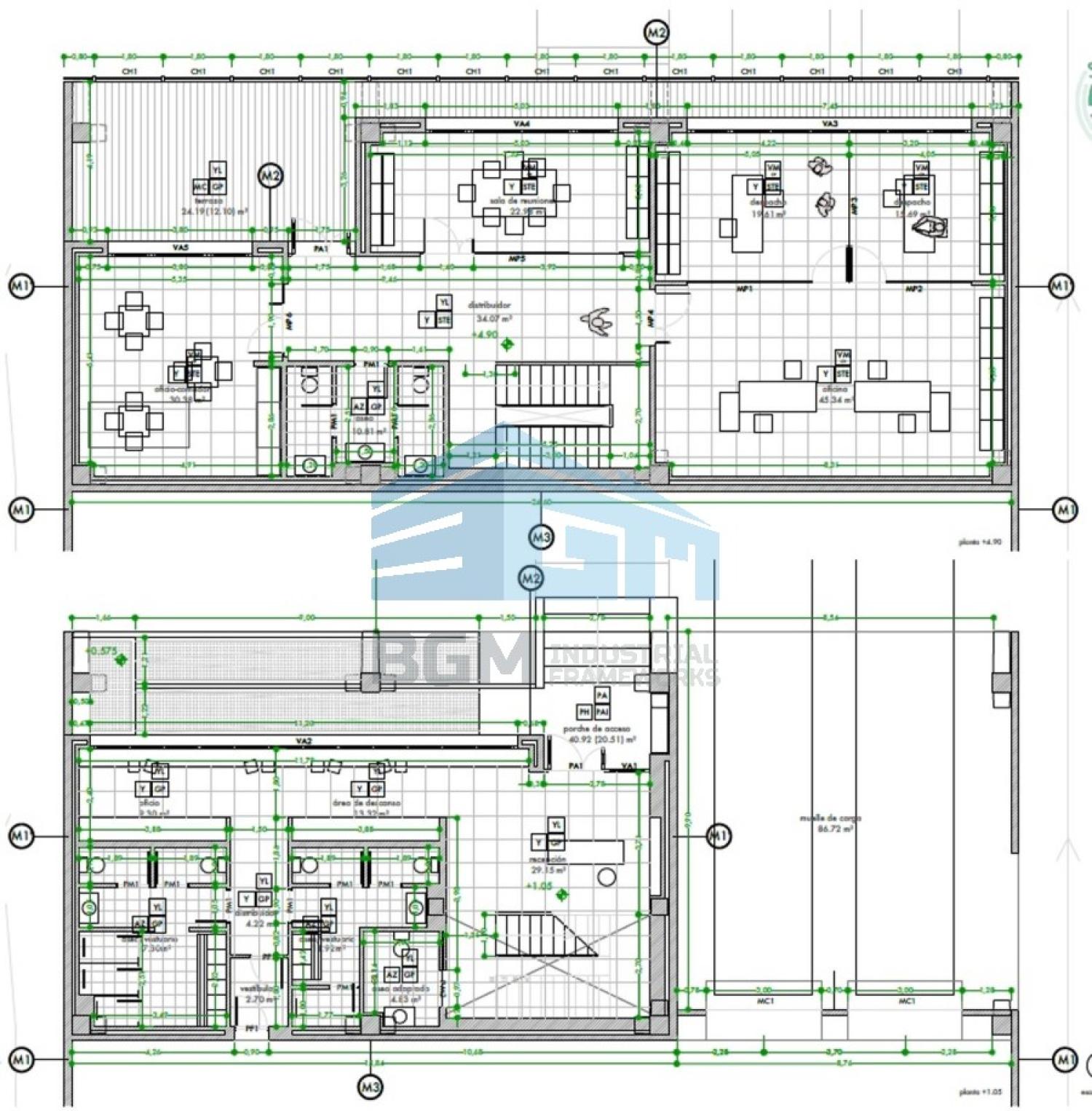
Descripción del inmueble

Nave logística construcción llave en mano de 1.835,05 m2 construidos en parcela de 3.069,62 m2 Planta baja de 1.589,06 m2 2 muelles10 m de alturaOficina planta 1ª de 249,99 m2Gastos de comunidad: ArrendatarioDisponibilidad Q1 2027

Características

Ubicación

 

VER DATOS DE CONTACTO

Otros inmuebles similares a lo que estás buscando

Alquiler
Alquiler
Alquiler
Alquiler
Alquiler
Alquiler
Alquiler
Alquiler
Alquiler
Alquiler