Alquiler de naves industriales en Madrid | BGM Naves Industriales

PINTO, MADRID

16.900,00 €
Tipo de propiedad Nave industrial
Tipo de contrato Alquiler
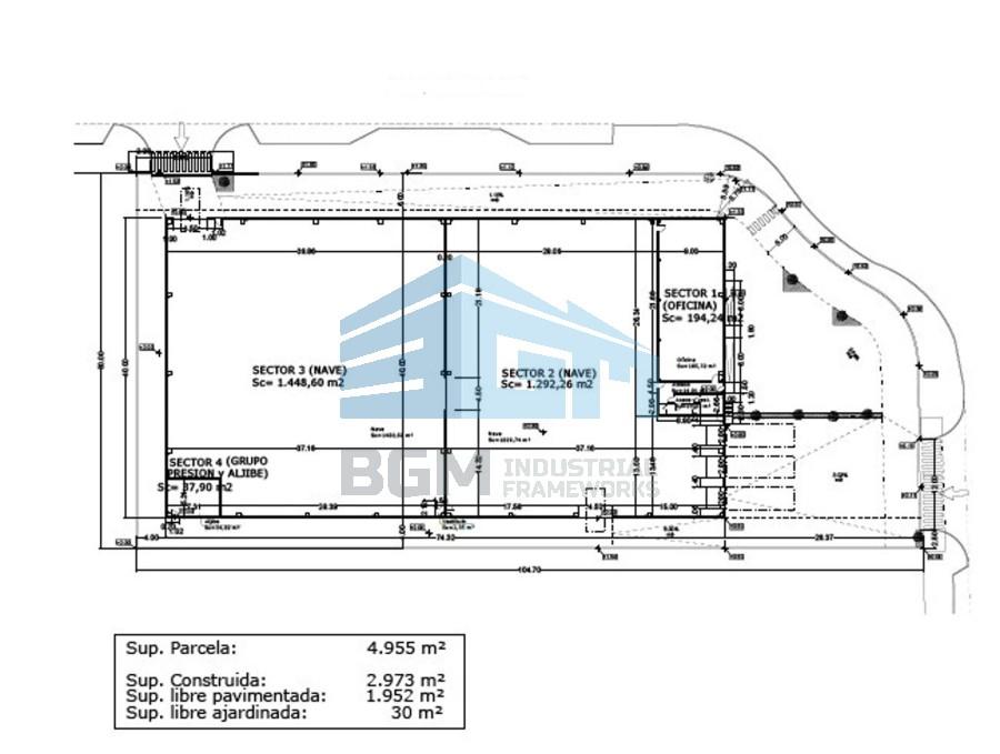
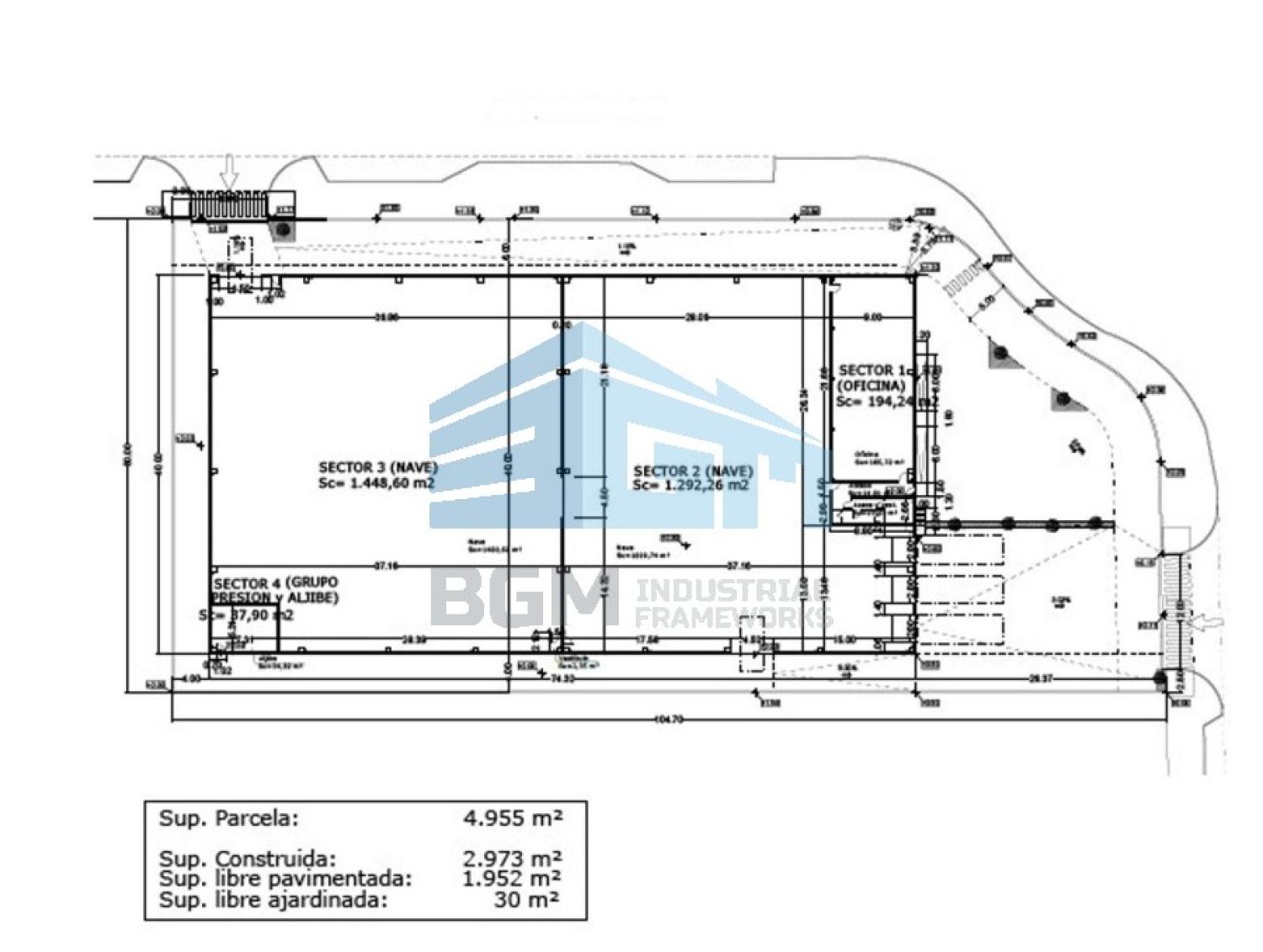
Superficie Total 4.995,00 m2
Uso pemitido Logístico
Certificado energético En trámite

Descripción del inmueble

Nave logística tipo C en alquiler de 3.973 m2 construidos en parcela de 4.995 m2. Almacén de de 2.740,86 m2 en 2 sectores de 1.448,60 m2 y 1.292,26 m2 3 muelles 10 m de alturaOficinas de 194.24 m22 paso de carruajes, acceso peatonal, ménsulas para puente grúa de 10T., instalación eléctrica con iluminación LED, central de incendios con de detectores de humos, acometida de BIES contra incendios con aljibe y grupo de presión. Gastos : incluidosDisponibilidad: Enero 2026

Características

Ubicación

 

VER DATOS DE CONTACTO

Otros inmuebles similares a lo que estás buscando

Alquiler
Alquiler
Alquiler
Alquiler
Alquiler
Alquiler
Alquiler
Alquiler
Alquiler
Alquiler